+5493404630253
Reservado
CASA EN PH A TERMINAR! CENTRICA Y FRENTISTA!
Código: 202641

Sarmiento 58, S2252IKB Gálvez, Santa Fe, Argentina, Galvez, Santa Fe, Argentina.

Consultar Precio
Casa
Compartir esta Propiedad

Descripción de la Propiedad

*CONCEPTO:
• Casa en PH.
• A terminar!
• Céntrica & Frentista.

*UBICACIÓN:
• SARMIENTO 58.
• Entre 5 Esquinas y Dorato.

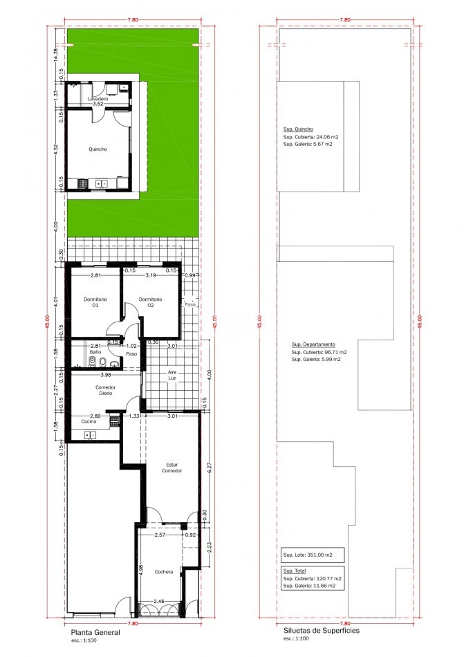
*SUPERFICIE EXCLUSIVA:
• Sup. TOTAL: 350 M2 APROX.
- Lote 7mts. de Frente – 7,80 mts. de contra-frente x 45 mts de Fondo.
• Sup. EDIFICADA:
- Total: 132,43 m2.
- Sector vivienda - 102,7 m2.
- Sector quincho - 29,73 m2.

*COMPOSICIÓN/AMBIENTES:
- Sector vivienda:
- Cochera.
- Estar comedor.
- Cocina-Comedor diario.
- Baño.
- Paso de Distribución.
- 2 Dormitorios.
- Patio seco.
- Sector Quincho:
- Cocina-comedor-Estar.
- Baño de servicio / Lavadero.
- Parque.

*SERVICIOS:
• Todos los servicios en sector urbano.

*SE DESTACA:
• Planta baja + Sin Desniveles + Frentista + Céntrico + Cochera y Parque! – Imperdible.
• Avanzado estado de terminación de obra.
• Cuenta con la estructura resuelta y las instalaciones de servicios terminadas (en materia de electricidad falta pasar cables).
• Medidores independientes organizados.
• Precio competitivo.


*IDEAL PARA:
• Quien busque comodidad y ubicación céntrica en una vivienda compacta sin renunciar a jardín y cochera.
• Quien busque renta para alquiler permanente o temporario.

Mas detalles